950 000 Р 12 310 $ или 10 380

Информация об комнате

13 м2
Комната
6
Этаж
9
Этажность

Состояние и оснащение

Лифт
есть

Дополнительная информация

Количество комнат
6
Количество продаваемых комнат
1
Лифт
Развернуть
Агент
+7 (910) 301-15-25
Начать чат с агентом

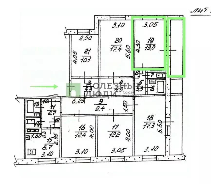
Комната Орловская область, Орел ул. Достоевского, 6 (13.0 м)

В центре Заводского района по ул. Достоевского, 6 на 6-м этаже 9-ти этажного дома продается теплая светлая комната площадью 13 кв. м + лоджия (7,8 кв. м), итого: 20,8 кв. мТип комнаты: секционный (секция на три комнаты, никто не проживает).Ванная и туалет на три комнаты. На кухне есть свой стол.Централизованное горячее водоснабжение В ванной есть все для подключения стиральной машины. В доме имеется современный лифт.Отличная транспортная доступность.Один взрослый собственник.Без долгов и обременений.Подходит под материнский капитал и другие формы расчетов.Полное юридическое сопровождение Отлично развита инфраструктура , в шаговой доступности находятся:- школа 17- детский сад 36, 47- СМ Магнит, СМ Магнит Косметикс, СМ Пятерочка, Красное и белое, Wildberries, OZON, Яндекс Маркет, ТЦ Линия, цветочный магазин, магазин автозапчастей.- ДОСААФ, отделение почты- автобусные и трамвайные остановкиГотова ответить на все вопросы и показать комнату с 9.00 до 21.00 Арт.

Читать полностью
    Позвонить Написать
    950 000 Р12 310 $ или 10 380
    Агент
    +7 (910) 301-15-25
    Начать чат с агентом
    Похожие предложения
    1к в 6-комнатной квартире (13 м) - Фото 1
    1к в 6-комнатной квартире (13 м) - Фото 2
    В центре Заводского района по ул. Достоевского, 6 на 6-м этаже 9-ти этажного дома продается теплая светлая комната площадью 13 кв. м + лоджия (7,8 кв. м), итого: 20,8 кв. м Тип комнаты: секционный (секция на три комнаты, никто не проживает). Ванная...
    • 1 ком.
    • 6/9 эт.
    • 13 м²
    950 000 Р
    Агент
    +7 (903) Показать номер
    Посмотреть контакты
    Комната Орловская область, Орел ул. Достоевского, 6 (17.4 м) - Фото 1
    Комната Орловская область, Орел ул. Достоевского, 6 (17.4 м) - Фото 2
    В центре Заводского района по ул. Достоевского, 6 на 6-м этаже 9-ти этажного дома продается теплая светлая комната площадью 17.40 кв. мТип комнаты: секционный (секция на три комнаты, никто не проживает).Ванная и туалет на три комнаты. На кухне есть...
    • 1 ком.
    • 6/9 эт.
    • 17.4 м²
    950 000 Р
    Агент
    +7 (910) Показать номер
    Посмотреть контакты
    Комната Орловская область, Орел ул. Маринченко, 20 (18.6 м) - Фото 1
    Комната Орловская область, Орел ул. Маринченко, 20 (18.6 м) - Фото 2
    Арт.Продаем комнату 18,6 кв. м. в центре Северного района на 2 этаже 5 этажного кирпичного дома по ул. Маринченко, д. 20 в районе ДК Металлург . Комната 18.6 кв.м. (есть горячая вода) в хорошем жилом состоянии, выделена кухонная зона. Комната продаётся...
    • 1 ком.
    • 2/5 эт.
    • 18.6 м²
    950 000 Р
    Агент
    +7 (910) Показать номер
    Посмотреть контакты
    Комната Орловская область, Орел Силикатная ул., 24 (16.8 м) - Фото 1
    Комната Орловская область, Орел Силикатная ул., 24 (16.8 м) - Фото 2
    Продам,уютную,светлую,просторную комнату в общежитии секционного типа(доля в праве)Ремонт косметический , окно ПВХ ,полы дсп окрашенный.При продаже остается мебель ,новому покупателю.В секции 6 комнат,из соседей в данный момент проживает один человек,Места...
    • 1 ком.
    • 4/4 эт.
    • 16.8 м²
    950 000 Р
    Агент
    +7 (915) Показать номер
    Посмотреть контакты
    Комната Орловская область, Орел ул. Революции, 30 (12.5 м) - Фото 1
    Комната Орловская область, Орел ул. Революции, 30 (12.5 м) - Фото 2
    Продам уютную комнату в центре Железнодорожного района, расположенную на комфортном 5-м этаже 9-ти этажного дома по адресу ул.Революции, 30.Площадь комнаты 12,5 кв. м + квадратная остекленная лоджия 2,6 кв. м..В комнате проведен косметический ремонт....
    • 1 ком.
    • 5/9 эт.
    • 12.5 м²
    950 000 Р
    Агент
    +7 (910) Показать номер
    Посмотреть контакты

    Не нашли подходящего объявления?

    Оставьте заявку, и наши риэлторы подберут комнату в районе Орла

    (0)