7 900 000 Р 98 980 $ или 85 000

Информация о коттедже

172 м2
Площадь
2
Этажность
11 cоток
Участок

Дополнительная информация

Дом продаётся вместе с участком
есть
Развернуть
Агент
+7 (910) 260-81-41
Начать чат с агентом

Дом в Орёл, Каштановая улица, 19 (172 м)

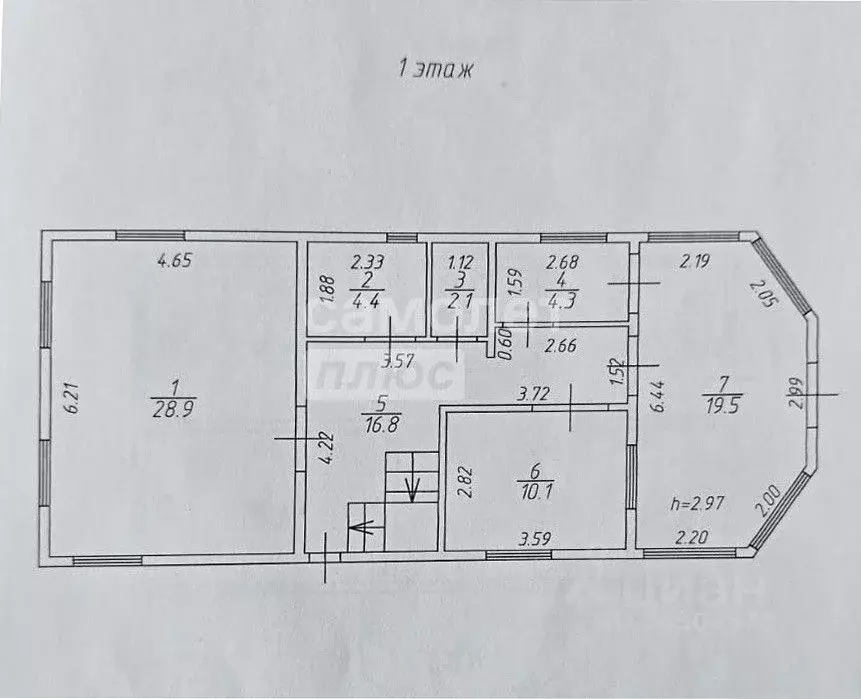
Продается уютный дом в черте города в Северном районе (ул. Каштановая).ДОМ 2001 года постройки, материал стен - кирпич + керамзитобетон. Общая площадь- 172 кв. м.Дом двухэтажный: на первом этаже - просторная кухня -15 кв. м, большая комната - 30 кв. м, две спальни по 25 кв. м, раздельный санузел.На втором этаже две спальни и возможность расширить жилую площадь.В доме качественный ремонт, окна ПВХ, входная дверь-сейф, отопление газовое, водоснабжение центральное, также имеется свой колодец на участке.Большой гараж, подвал, огород и сад на 12 сотках.Дом расположен на тихой, живописной улице, множество зеленых насаждений и чистый воздух обеспечит вам комфортный отдых и проживание в экологически чистом районе. Звоните, рассмотрим все формы оплаты Номер объекта: 5/537578/19230

Читать полностью

    Для того, чтобы купить 2-этажный коттедж по адресу: Орел, ул. Каштановая, 19, позвоните по телефону +7 (910) 260-81-41. Торопитесь! Объявление №50016515498 о продаже двухэтажного коттеджа опубликовано 25 октября 2025.

    Позвонить Написать
    7 900 000 Р98 980 $ или 85 000
    Агент
    +7 (910) 260-81-41
    Начать чат с агентом
    Похожие предложения
    Дом в Орловская область, Орел ул. Катукова, 23 (178 м) - Фото 1
    Дом в Орловская область, Орел ул. Катукова, 23 (178 м) - Фото 2
    2 этажа, общая площадь 178м², участок 6 соток

    Дом находится в тихом и спокойном районе с развитой инфраструктурой. Рядом расположены школы, детские сады, магазины. Дом двухэтажный с удобной планировкой: на первом этаже расположена просторная гостиная объединённая с функциональной кухней, большая...
    • 2 эт.
    • 178 м²
    • 6 сот.
    7 990 000 Р
    Агент
    +7 (980) Показать номер
    Посмотреть контакты
    Дом в Орловская область, Орловский район, д. Грачевка ул. Березовая, ... - Фото 1
    Дом в Орловская область, Орловский район, д. Грачевка ул. Березовая, ... - Фото 2
    1 этаж, общая площадь 149м², участок 15 соток

    Подходит под сельскую ипотеку Продам ДОМ с террасой с качественным ремонтом, с использованием профессиональных технологий, в спокойном и экологическом районе, в 7 минутах езды от г. Орла В доме предчистовая отделка Общая площадь дома 149,9 кв.м-три...
    • 1 эт.
    • 149 м²
    • 15 сот.
    7 999 000 Р
    Агент
    +7 (980) Показать номер
    Посмотреть контакты
    Дом в Орловская область, Орловский район, Металлург СНТ 345 (88 м) - Фото 1
    Дом в Орловская область, Орловский район, Металлург СНТ 345 (88 м) - Фото 2
    2 этажа, общая площадь 88м², участок 5 соток

    Арт.Для ценителей качества предлагаю Вашему вниманию ДОМ из гомельского пеноблока.На огороженном со всех сторон забором участке: ДОМ 88,6 кв.м. с террасой 9 кв.м., шикарная баня, детская игровая площадка, паркинг на 2 машины, красивые цветы, туи, подготовлено...
    • 2 эт.
    • 88 м²
    • 5 сот.
    7 900 000 Р
    Агент
    +7 (910) Показать номер
    Посмотреть контакты
    Дом в Орловская область, Мценск Рабочая ул., 28 (134 м) - Фото 1
    Дом в Орловская область, Мценск Рабочая ул., 28 (134 м) - Фото 2
    2 этажа, общая площадь 134м², участок 6 соток

    Продается жилой 2-х этажный кирпичный дом 134,2 кв. м. по адресу: г. Мценск, ул. Рабочая. Участок 6 соток. Свет, газ и вода в доме. Большая кухня 14,4 кв. м. для дружной семьи и гостей, 7 комнат, 2 сан узла. Отопление и подогрев воды от 2-х контурного...
    • 2 эт.
    • 134 м²
    • 6 сот.
    8 000 000 Р
    Агент
    +7 (915) Показать номер
    Посмотреть контакты
    Дом в Калужская область, Козельский район, Дешовки с/пос, д. Дешовки ... - Фото 1
    Дом в Калужская область, Козельский район, Дешовки с/пос, д. Дешовки ... - Фото 2
    2 этажа, общая площадь 160м², участок 12 соток

    Арт.Вашему вниманию предлагается замечательный дом на окраине города Козельск в д. Дешовки по ул. Советской Живописные места с развитой инфраструктурой Домасполагается на участке 12 соток , так же смежный участок на 18 соток находится в аренде. ...
    • 2 эт.
    • 160 м²
    • 12 сот.
    7 990 000 Р
    Агент
    +7 (980) Показать номер
    Посмотреть контакты

    Не нашли подходящего объявления?

    Оставьте заявку, и наши риэлторы подберут купить дом в районе Орла

    (0)