15 000 Р 183 $ или 156

Информация о помещении и здании

2
Этаж
2
Этажность
Развернуть
Агент
Денис Илюхин (Самолет ПЛЮС Орёл)
+7 (919) 260-45-45
Начать чат с агентом

Офис в Орловская область, Орел ул. Лескова, 16 (15 м)

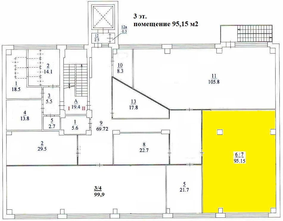
Арт.Сдается помещение в Советском районе Расположение: Советский район (здание с разнообразной инфраструктурой). Особенности помещения и бесплатные услуги: Меблировано (всё необходимое для комфортной работы) Высокоскоростной интернет Регулярная уборка Инфраструктура здания: - Магазин автозапчастей - Теннисный клуб - Танцевальный зал - Студия тюнинга автомобилей - Туалет и зона ожидания на 1 этаже Условия аренды: Оплата за первый и последний месяц. Звоните, чтобы уточнить детали и договориться о просмотре Отличный вариант для бизнеса, офиса или творческого пространства

Читать полностью
    Позвонить Написать
    15 000 Р183 $ или 156
    Агент
    Денис Илюхин (Самолет ПЛЮС Орёл)
    +7 (919) 260-45-45
    Начать чат с агентом
    Похожие предложения
    Офис в Хабаровский край, Хабаровск ул. Джамбула, 87Б (30 м) - Фото 1
    Офис в Хабаровский край, Хабаровск ул. Джамбула, 87Б (30 м) - Фото 2
    2-й этаж, всего 4 этажа

    1 этаж. Возможна аренда до 900 кв.м., том числе производственные помещения.
    • 2/4 эт.
    15 000 Р
    Агент
    +7 (914) Показать номер
    Посмотреть контакты
    Сдается офис на Востряковском проезде д - Фото 1
    Сдается офис на Востряковском проезде д - Фото 2
    Сдается офис на Востряковском проезде д - Фото 3
    Сдается офис на Востряковском проезде д - Фото 4
    Сдается офис на Востряковском проезде д - Фото 5
    Сдается офис на Востряковском проезде д - Фото 6
    Сдается офис на Востряковском проезде д - Фото 7
    реализуемая площадь 78м²

    Лот:. Сдается офис на Востряковском проезде д. 10, 78 кв.м., в административном здании на 4 этаже БЕЗ ЛИФТА. На первом этаже есть своя столовая. Возможно предоставления юр. адреса. Свет, телефония, интернет (Ростелеком, Экотел) и уборка офиса оплачиваются...
    • 78 м²
    102 200 Р /в месяц
    Агент
    +7 (915) Показать номер
    Посмотреть контакты
    Предлагается в аренду офисный блок на 3 эт - Фото 1
    Предлагается в аренду офисный блок на 3 эт - Фото 2
    Предлагается в аренду офисный блок на 3 эт - Фото 3
    Предлагается в аренду офисный блок на 3 эт - Фото 4
    Предлагается в аренду офисный блок на 3 эт - Фото 5
    Предлагается в аренду офисный блок на 3 эт - Фото 6
    Предлагается в аренду офисный блок на 3 эт - Фото 7
    Предлагается в аренду офисный блок на 3 эт - Фото 8
    Предлагается в аренду офисный блок на 3 эт - Фото 9
    Предлагается в аренду офисный блок на 3 эт - Фото 10
    Предлагается в аренду офисный блок на 3 эт - Фото 11
    Предлагается в аренду офисный блок на 3 эт - Фото 12
    Предлагается в аренду офисный блок на 3 эт - Фото 13
    Предлагается в аренду офисный блок на 3 эт - Фото 14
    Предлагается в аренду офисный блок на 3 эт - Фото 15
    Предлагается в аренду офисный блок на 3 эт - Фото 16
    Предлагается в аренду офисный блок на 3 эт - Фото 17
    Предлагается в аренду офисный блок на 3 эт - Фото 18
    Предлагается в аренду офисный блок на 3 эт - Фото 19
    Предлагается в аренду офисный блок на 3 эт - Фото 20
    реализуемая площадь 600м²

    Лот:. Предлагается в аренду офисный блок на 3 эт. Общая площадь 600 кв.м. Помещение готовое к въезду, просторное светлое. Лифт 2 шт. С/У на этаже. Пропускная ситстема. Охрана. Парковка. Коммуналка включена. УСНО. АГЕНТАМ ПРОСЬБА НЕ ЗВОНИТЬ.
    • 600 м²
    700 000 Р /в месяц
    Агент
    +7 (916) Показать номер
    Посмотреть контакты
    Предлагается в аренду офисное помещение на 3 эт - Фото 1
    Предлагается в аренду офисное помещение на 3 эт - Фото 2
    Предлагается в аренду офисное помещение на 3 эт - Фото 3
    Предлагается в аренду офисное помещение на 3 эт - Фото 4
    Предлагается в аренду офисное помещение на 3 эт - Фото 5
    Предлагается в аренду офисное помещение на 3 эт - Фото 6
    Предлагается в аренду офисное помещение на 3 эт - Фото 7
    Предлагается в аренду офисное помещение на 3 эт - Фото 8
    Предлагается в аренду офисное помещение на 3 эт - Фото 9
    Предлагается в аренду офисное помещение на 3 эт - Фото 10
    Предлагается в аренду офисное помещение на 3 эт - Фото 11
    Предлагается в аренду офисное помещение на 3 эт - Фото 12
    Предлагается в аренду офисное помещение на 3 эт - Фото 13
    Предлагается в аренду офисное помещение на 3 эт - Фото 14
    Предлагается в аренду офисное помещение на 3 эт - Фото 15
    Предлагается в аренду офисное помещение на 3 эт - Фото 16
    Предлагается в аренду офисное помещение на 3 эт - Фото 17
    Предлагается в аренду офисное помещение на 3 эт - Фото 18
    Предлагается в аренду офисное помещение на 3 эт - Фото 19
    Предлагается в аренду офисное помещение на 3 эт - Фото 20
    реализуемая площадь 50м²

    Лот:. Предлагается в аренду офисное помещение на 3 эт. в бизнес центре. Общая площадь 50 кв.м. Из них 35 кв.м. основная комната с окном, и 15 кв.м. часть помещения без окна. Помещение готовое к въезду. Лифт 2 шт. С/У на этаже. Пропускная система. Ресепшн....
    • 50 м²
    62 500 Р /в месяц
    Агент
    +7 (916) Показать номер
    Посмотреть контакты
    Сдается офис на Дорожной улице, ближайшее метро Южная - Фото 1
    Сдается офис на Дорожной улице, ближайшее метро Южная - Фото 2
    реализуемая площадь 25м²

    Лот:. Сдается офис на Дорожной улице, ближайшее метро Южная. Только под офис.
    • 25 м²
    29 590 Р /в месяц
    Агент
    +7 (915) Показать номер
    Посмотреть контакты

    Не нашли подходящего объявления?

    Оставьте заявку, и наши риэлторы подберут офис в районе Орла

    (0)